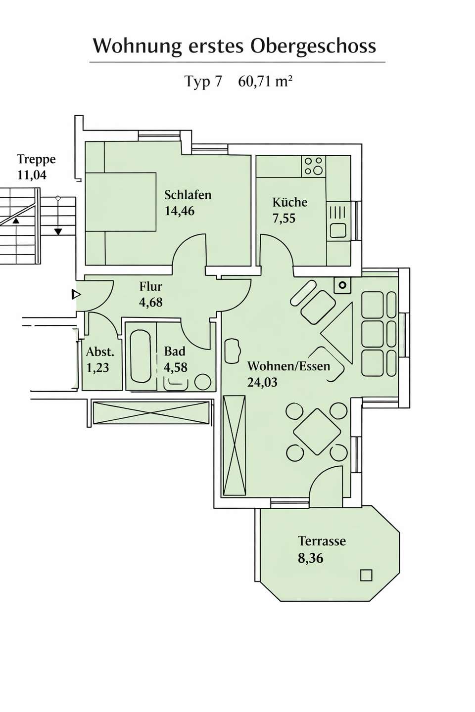
Diese charmante 2-Zimmer-Etagenwohnung zur Miete befindet sich in attraktiver Lage von Magdeburg und überzeugt durch eine gelungene Kombination aus Komfort, Funktionalität und zeitgemäßer Ausstattung. Mit einer großzügigen Wohnfläche von 60,71 m² bietet die Wohnung ideale Voraussetzungen für Singles oder Paare, die Wert auf ein angenehmes und gepflegtes Wohnambiente legen.
Die Wohnung verfügt über zwei gut geschnittene Zimmer, die vielseitige Nutzungsmöglichkeiten eröffnen. Das helle und geräumige Wohnzimmer lädt zum Entspannen und Verweilen ein und bietet ausreichend Platz für eine gemütliche Wohnlandschaft sowie einen Essbereich. Von hier aus gelangen Sie auf den Balkon, der im Jahr 2025 umfassend saniert wurde und Ihnen einen schönen Rückzugsort im Freien bietet – perfekt für entspannte Stunden an der frischen Luft.
Das Schlafzimmer ist ruhig gelegen und bietet genügend Raum für ein großes Bett sowie zusätzliche Möbel. Das moderne Badezimmer wurde 2024 erneuert und überzeugt durch eine zeitgemäße Ausstattung, die den täglichen Komfort unterstreicht. Die Fenster der Wohnung wurden im November 2024 aufbereitet und sorgen für eine angenehme Lichtdurchflutung sowie eine verbesserte Energieeffizienz.
Ein weiterer Pluspunkt ist der im Haus vorhandene Aufzug, der Ihnen einen bequemen und barrierearmen Zugang zur Wohnung ermöglicht und den Alltag spürbar erleichtert. Ergänzt wird das Angebot durch praktische Gemeinschaftseinrichtungen wie einen Waschmaschinen- und Trockenraum sowie einen separaten Fahrradkeller, der sicheren Platz für Ihre Zweiräder bietet. Zusätzlich steht Ihnen ein eigener Kellerraum zur Verfügung, der wertvollen Stauraum schafft.
Die Wohnung befindet sich in einem gepflegten Wohnhaus mit zeitgemäßer Ausstattung und bietet Ihnen ein angenehmes Wohnumfeld. Nutzen Sie diese Gelegenheit, in eine gut ausgestattete und modernisierte Wohnung einzuziehen, die Ihnen alle Annehmlichkeiten des täglichen Lebens bietet. Wir freuen uns darauf, Ihnen diese attraktive Immobilie persönlich vorstellen zu dürfen.
Bevorzugte Lage: Im Grünen - verkehrsgünstig und ruhig -
Der Goethepark liegt im südwestlichen Bereich Magdeburgs, in einer ruhigen Umgebung, eingebettet in viel Grün und in direkter Nachbarschaft zu einer parkähnlichen Anlage mit altem Baumbestand.
Genießen Sie hier Ihren Abendspaziergang, vielleicht mit einer Runde um die kleine Teichanlage...
Die Innenstadt erreichen Sie in wenigen Minuten mit privaten wie auch mit öffentlichen Verkehrsmitteln.
Jetzt unverbindlich anfragen
Jede Anfrage ist individuell. Ob Käufer oder Verkäufer: Wir unterstützen Sie professionell, zielorientiert und unkompliziert. Unser Team in Magdeburg ist immer für Sie da.
Wir sind Ihr Ansprechpartner vor Ort in Magdeburg!
Telefonnummer Büro
Unsere Email
Büro - Mo. – Fr. 10:00 Uhr – 18:00 Uhr
Weitere Immobilien
Unsere aktuellen Immobilienangebote

















