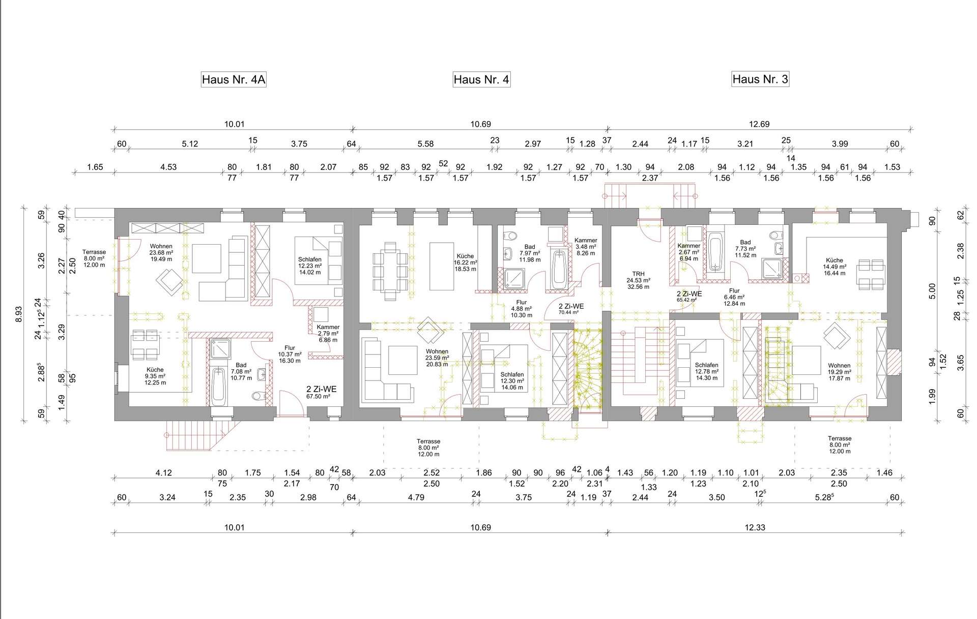
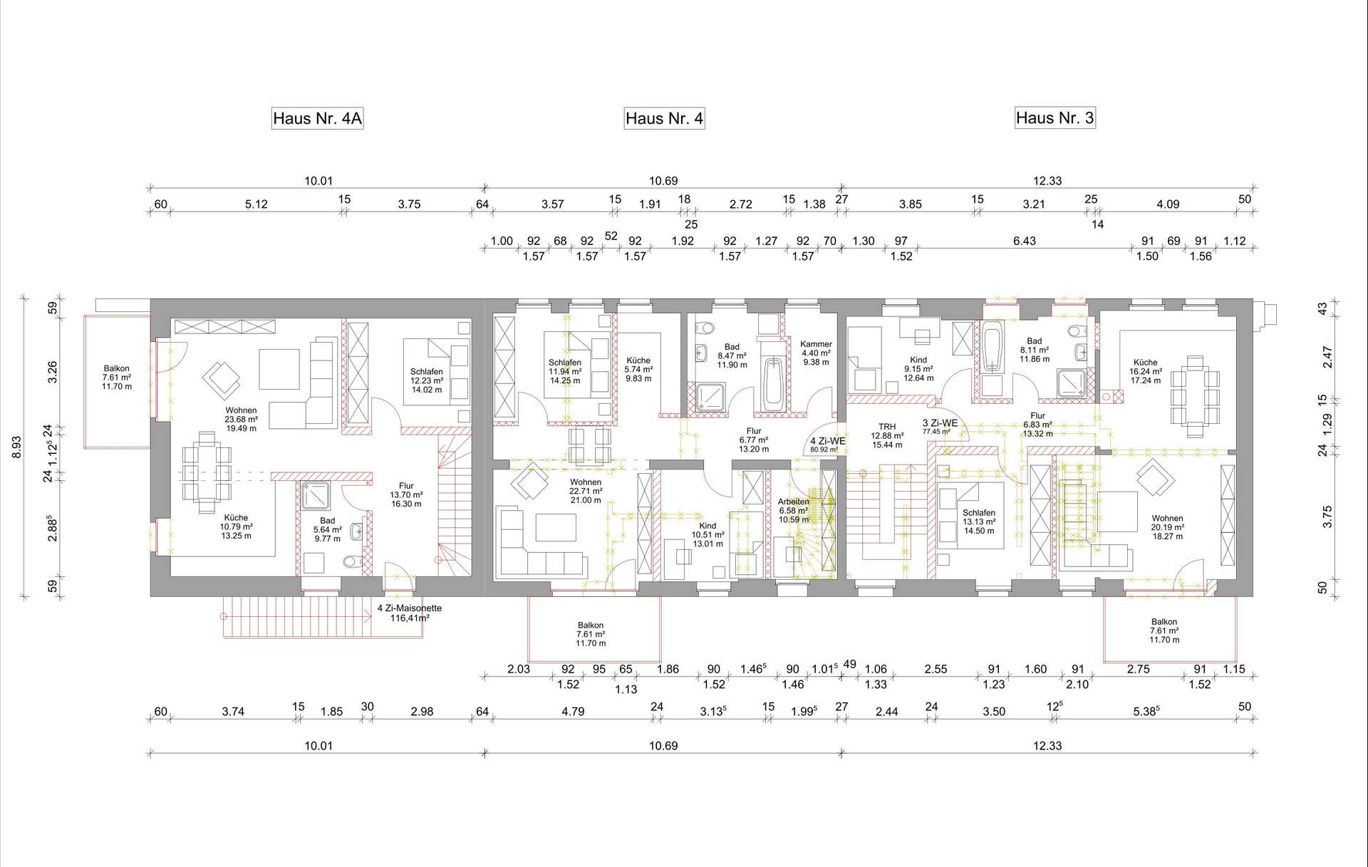
Bei dem angebotenen Objekt handelt es sich um ein bebautes Grundstück mit einem Mehrfamilienhaus sowie einem zusätzlichen Nebengebäude, das sich insbesondere an Investoren, Projektentwickler und Käufer mit Fokus auf Aus- und Umbauprojekte richtet. Das Hauptgebäude wurde um 1900 in massiver Bauweise errichtet und verfügt derzeit über vier Wohneinheiten mit einer Wohnfläche von rund 264 m². Ergänzt wird das Ensemble durch ein Nebengebäude, das sich in einem sanierungsbedürftigen Zustand befindet und perspektivisch als Entwicklungsreserve betrachtet werden kann.
Der bauliche Zustand des Objekts ist insgesamt als deutlich renovierungs- und modernisierungsbedürftig einzustufen. Wesentliche Gebäudeteile wie Dach, Fassade, Haustechnik, Innenausbau und Grundrisszuschnitte entsprechen nicht mehr heutigen Wohn- und Energiestandards. Gleichzeitig bildet genau dieser Umstand die Grundlage für ein klassisches Value-Add-Investment: Die vorhandene Substanz bietet vielfältige Ansatzpunkte für eine nachhaltige Aufwertung, sowohl durch technische Modernisierung als auch durch konzeptionelle Neuausrichtung der Wohneinheiten.
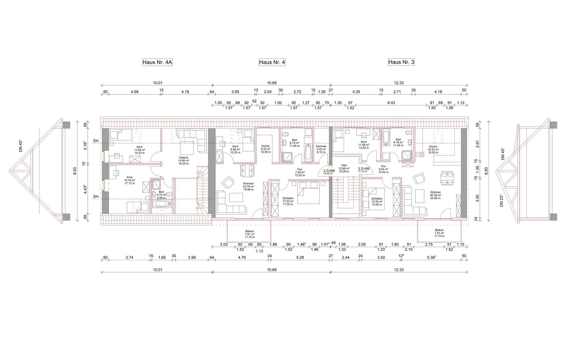
Besonders hervorzuheben ist, dass bereits eine Planung für den Ausbau des Dachgeschosses vorliegt. Durch die Realisierung dieser Ausbaureserve kann zusätzliche Wohnfläche geschaffen werden, wodurch sich das Objekt um weitere vermietbare Einheiten erweitern lässt. Der Dachgeschossausbau eröffnet somit ein direktes Potenzial zur Steigerung der Mieteinnahmen sowie zur nachhaltigen Erhöhung des Gesamtobjektwertes. In Verbindung mit einer umfassenden Modernisierung des Bestands ergibt sich hier ein attraktiver Hebel zwischen Investitionsvolumen und langfristiger Ertragskraft.
Die bestehende Grundrissstruktur erlaubt darüber hinaus weitere Optimierungen, etwa durch zeitgemäße Zuschnitte, funktionalere Raumaufteilungen oder eine qualitative Verbesserung der Wohnqualität. Nach Durchführung entsprechender Maßnahmen ist von einer deutlichen Steigerung der Vermietbarkeit und der nachhaltig erzielbaren Mieteinnahmen auszugehen. Das großzügige Grundstück bietet zudem Spielraum für eine Aufwertung der Außenanlagen oder – vorbehaltlich baurechtlicher Prüfung – ergänzende Entwicklungsmaßnahmen.
Zusammenfassung
Das Objekt stellt eine substanzbasierte Investitionsmöglichkeit mit klar definiertem Entwicklungs- und Wertsteigerungspotenzial dar. Neben der Modernisierung des Bestands bietet insbesondere der bereits geplante Dachgeschossausbau eine attraktive Möglichkeit zur Erhöhung der Wohnfläche und der laufenden Mieteinnahmen. Der aktuell einfache Zustand spiegelt sich im attraktiven Einstiegspreis wider und eröffnet Investoren mit Weitblick die Chance, durch gezielte Maßnahmen nachhaltige Mehrwerte zu schaffen.
Mikrolage
Das Objekt befindet sich innerhalb eines gewachsenen Ortsteils mit überwiegend wohnbaulicher Nutzung. Die unmittelbare Umgebung ist geprägt von Wohnhäusern ähnlicher Struktur sowie vereinzelt kleinteiligen Nebennutzungen. Einkaufsmöglichkeiten des täglichen Bedarfs, Schulen, Kindertagesstätten und weitere infrastrukturelle Einrichtungen sind im Ort bzw. in kurzer Distanz erreichbar. Öffentliche Verkehrsmittel stehen fußläufig zur Verfügung und gewährleisten eine solide Anbindung innerhalb der Gemeinde sowie in die umliegenden Orte.
Die Lage eignet sich insbesondere für preisbewusstes Wohnen und spricht Mieter an, die eine ruhige Wohnumgebung mit funktionaler Erreichbarkeit schätzen. Nach einer Modernisierung ist das Objekt gut positioniert, um eine stabile Nachfrage aus dem lokalen und regionalen Mietmarkt zu bedienen.
Makrolage
Makrogeografisch liegt die Immobilie im Landkreis Börde in Sachsen-Anhalt, einer Region mit gewachsener Infrastruktur und Nähe zu wirtschaftlich relevanten Zentren. Die Landeshauptstadt Magdeburg ist in kurzer Zeit erreichbar und stellt einen bedeutenden Arbeits-, Bildungs- und Wirtschaftsstandort dar. Die verkehrliche Anbindung über regionale Straßen sowie die Nähe zu übergeordneten Verkehrsachsen begünstigen Pendlerströme und erhöhen die Attraktivität des Standorts.
Die Region profitiert von vergleichsweise moderaten Einstiegspreisen bei gleichzeitig stabilem Wohnraumbedarf. Gerade für Investoren eröffnen sich hier Chancen, durch gezielte Bestandsentwicklung Objekte langfristig wirtschaftlich zu repositionieren. In Verbindung mit der Nähe zu Magdeburg ergibt sich eine solide makroökonomische Perspektive, die insbesondere für Bestandshalter und renditeorientierte Investoren interessant ist.
Bei dem angebotenen Objekt handelt es sich um ein bebautes Grundstück mit einem Mehrfamilienhaus sowie einem zusätzlichen Nebengebäude, das sich insbesondere an Investoren, Projektentwickler und Käufer mit Fokus auf Aus- und Umbauprojekte richtet. Das Hauptgebäude wurde um 1900 in massiver Bauweise errichtet und verfügt derzeit über vier Wohneinheiten mit einer Wohnfläche von rund 264 m². Ergänzt wird das Ensemble durch ein Nebengebäude, das sich in einem sanierungsbedürftigen Zustand befindet und perspektivisch als Entwicklungsreserve betrachtet werden kann.
Der bauliche Zustand des Objekts ist insgesamt als deutlich renovierungs- und modernisierungsbedürftig einzustufen. Wesentliche Gebäudeteile wie Dach, Fassade, Haustechnik, Innenausbau und Grundrisszuschnitte entsprechen nicht mehr heutigen Wohn- und Energiestandards. Gleichzeitig bildet genau dieser Umstand die Grundlage für ein klassisches Value-Add-Investment: Die vorhandene Substanz bietet vielfältige Ansatzpunkte für eine nachhaltige Aufwertung, sowohl durch technische Modernisierung als auch durch konzeptionelle Neuausrichtung der Wohneinheiten.
Besonders hervorzuheben ist, dass bereits eine Planung für den Ausbau des Dachgeschosses vorliegt. Durch die Realisierung dieser Ausbaureserve kann zusätzliche Wohnfläche geschaffen werden, wodurch sich das Objekt um weitere vermietbare Einheiten erweitern lässt. Der Dachgeschossausbau eröffnet somit ein direktes Potenzial zur Steigerung der Mieteinnahmen sowie zur nachhaltigen Erhöhung des Gesamtobjektwertes. In Verbindung mit einer umfassenden Modernisierung des Bestands ergibt sich hier ein attraktiver Hebel zwischen Investitionsvolumen und langfristiger Ertragskraft.
Die bestehende Grundrissstruktur erlaubt darüber hinaus weitere Optimierungen, etwa durch zeitgemäße Zuschnitte, funktionalere Raumaufteilungen oder eine qualitative Verbesserung der Wohnqualität. Nach Durchführung entsprechender Maßnahmen ist von einer deutlichen Steigerung der Vermietbarkeit und der nachhaltig erzielbaren Mieteinnahmen auszugehen. Das großzügige Grundstück bietet zudem Spielraum für eine Aufwertung der Außenanlagen oder – vorbehaltlich baurechtlicher Prüfung – ergänzende Entwicklungsmaßnahmen.
Zusammenfassung
Das Objekt stellt eine substanzbasierte Investitionsmöglichkeit mit klar definiertem Entwicklungs- und Wertsteigerungspotenzial dar. Neben der Modernisierung des Bestands bietet insbesondere der bereits geplante Dachgeschossausbau eine attraktive Möglichkeit zur Erhöhung der Wohnfläche und der laufenden Mieteinnahmen. Der aktuell einfache Zustand spiegelt sich im attraktiven Einstiegspreis wider und eröffnet Investoren mit Weitblick die Chance, durch gezielte Maßnahmen nachhaltige Mehrwerte zu schaffen.
Jetzt unverbindlich anfragen
Jede Anfrage ist individuell. Ob Käufer oder Verkäufer: Wir unterstützen Sie professionell, zielorientiert und unkompliziert. Unser Team in Magdeburg ist immer für Sie da.
Wir sind Ihr Ansprechpartner vor Ort in Magdeburg!
Telefonnummer Büro
Unsere Email
Büro - Mo. – Fr. 10:00 Uhr – 18:00 Uhr
Weitere Immobilien
Unsere aktuellen Immobilienangebote

















